网站首页
关于我们
客户案例
视觉互动
服务范围
新闻动态
联系我们
0512-66313758
苏州观唐文化传媒有限公司
扫一扫/uploadpic/image/202509/20250925182058_43060.jpg
客户案例
Customer Case
展览展示
文化空间
商业营造
艺术装置
策划创意
客户案例
展览展示
文化空间
商业营造
艺术装置
策划创意
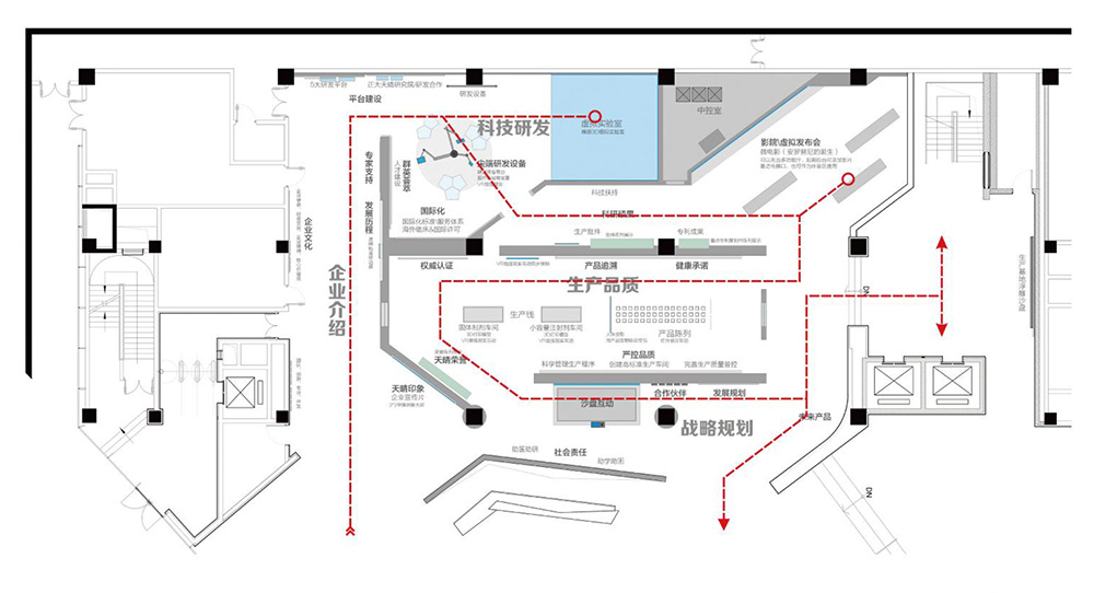
正大天晴展示馆
电话
微信
留言
扫一扫关注微信
0512-66313758
13962452960